
Zainteresowała Cię ta oferta?



Dostępne tylko u nas !!!
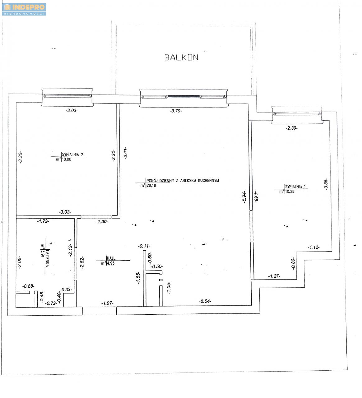
Mam przyjemność zaprezentować Państwu mieszkanie 3 pokojowe o powierzchni 49,32m² w Radzyminie położone przy ul. Reymonta na zamkniętym, strzeżonym osiedlu, budynek z 2011r. Dużym atutem bloku są przestronne klatki i winda. Mieszkanie znajduje się na parterze w 3-piętrowym budynku, a piękny widok z balkonu jest jego niezapczeczalnym atutem.
Nieruchomość położona jest prawie w samym centrum miasta i składa się z :
- SALONU z aneksem kuchennym o powierzchni - 20,18m² oraz wyjściem na zabudowaną/przeszkloną loggię o
pow.ok.10m².
- SYPIALNI - 10,28m²
- SYPIALNI - 10m²
- ŁAZIENKI - 3,91m², wyposażonej w wannę z prysznicem
- PRZEDPOKOJU - 4,95m² wraz z szafą w zabudowie.
MIEJSCE PARKINGOWE oraz KOMÓRKA LOKATORSKA W CENIE !!!
Mieszkanie wyposażone jest również w rolety antywłamaniowe.
Dodatkowym atutem tego mieszkania są niskie opłaty czynszowe: czynsz administracyjny: 520zł/mc - mieszkają 3 osoby (w tym: woda+ fundusz remontowy). Oddzielnie płatny: prąd i gaz (raz na 2 miesiące).
Tuż przy bloku znajduje się plac zabaw, na terenie boisko i inne atrakcje dla dzieci. Teren osiedla ogrodzony, strzeżony, monitorowany, zainstalowane domofony.
Lokalizacja – wszystko w zasięgu ręki!
Mieszkanie znajduje się w dogodnej części Radzymina, co zapewnia łatwy dostęp do pełnej infrastruktury:
W pobliżu znajdują się:
Sklepy spożywcze (Lidl, Biedronka Rossman, Delikatesy Centrum), piekarnia, salon urody, szpital i przychodnia, szkoły, przedszkola, Centrum Sportowe, restauracje, banki, apteki, Urząd Miasta.
KOMUNIKACJA:
- linia autobusowa łącząca Radzymin oraz Marki z Warszawą - 10 min do trasy S8,
- do przystanku autobusowego 300m - R7, R38; 700m - 738
Serdecznie zapraszam na prezentację w dowolnym dla Państwa terminie.
Na pierwszym miejscu zawsze stawiamy klienta, dlatego z naszą pomocą zakup nieruchomości jest prosty. Współpracujemy z ekspertami ds. kredytów, którzy porównają dla Państwa oferty wszystkich banków. Możecie liczyć na naszą kompleksową, profesjonalną i sprawną obsługę.
Oferujemy pomoc doradcy kredytowego.


