
Zainteresowała Cię ta oferta?



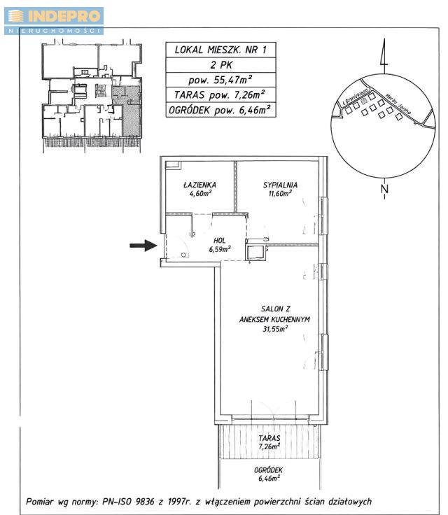
Na sprzedaż komfortowe, 2-pokojowe mieszkanie o powierzchni 55,47 m², położone na parterze nowoczesnego apartamentowca z 2020 roku przy Warszawa – Miasteczko Wilanów.
Dobra cena!!
Idealna propozycja dla osób ceniących ciszę, zieleń i wygodę, a jednocześnie dobrą infrastrukturę miejską.
Największy atut
Prywatny ogródek (6,46 m²) i taras (7,26 m²) z bezpośrednim wyjściem z salonu – rzadkie i bardzo poszukiwane rozwiązanie w tej części Wilanowa. Idealne miejsce na poranną kawę, relaks lub niewielki ogród.
Układ i wnętrze
Salon z aneksem kuchennym – 31,5 m² (wyjście na taras i ogródek)
Sypialnia – 11,6 m² (duża szafa, możliwość aranżacji miejsca do pracy)
Łazienka – 4,6 m² (wanna, pralka)
Hol – 6,6 m²
Mieszkanie jest jasne, ciche i bardzo dobrze doświetlone dzięki dużym oknom. Neutralna kolorystyka ułatwia aranżację według własnego stylu.
Salon i kuchnia
Nowoczesna kuchnia z pełnym wyposażeniem (kuchenka, piekarnik, lodówka, zmywarka), część jadalniana oraz wygodna przestrzeń wypoczynkowa z wyjściem na taras i ogródek.
Łazienka
Estetyczne, nowoczesne wykończenie, wanna, pralka – wszystko w bardzo dobrym stanie.
Budynek i okolica
apartamentowiec z windą (5 pięter) zadbany, cichy dziedziniec nowa, estetyczna zabudowa w pobliżu: sklepy, szkoły, przedszkola, kawiarnie, przystanki komunikacji miejskiej wygodny i szybki dojazd do innych części miasta
Parking
Zewnętrzne miejsce parkingowe
Informacje dodatkowe
pełna własność z księgą wieczystą mieszkanie w bardzo dobrym stanie dostępne od zaraz
Cena:
885.000 mieszkanie 35.000 miejsce parkingowe zewnętrzne*
*zakup obligatoryjny
Zapraszamy do kontaktu
Świetna propozycja zarówno do zamieszkania, jak i pod inwestycję.
To mieszkanie naprawdę warto zobaczyć na żywo – ogródek i taras robią różnicę.
#sprzedam #mieszkanieNaSprzedaż #Warszawa #Wilanów #MiasteczkoWilanów #2pokoje #mieszkanieZogródkiem #taras #parter #noweBudownictwo #apartamentowiec #inwestycja #idealneNaStart #dlaRodziny #dlaSingla #ciszaIZieleń #dobraCena #gotoweDoWprowadzenia #parking #nieruchomości


