
Zainteresowała Cię ta oferta?



Nowoczesna willa miejska w prestiżowej, kameralnej inwestycji – blisko Wisły i Rezerwatu Zakole Wawerskie
Jeśli szukasz domu, który łączy odważną, nowoczesną architekturę z prywatnością i bliskością natury, ta nieruchomość spełni Twoje oczekiwania.
Prezentowany lokal to elegancka, dwukondygnacyjna willa miejska o powierzchni wewnętrznej 184,39 m², z garażem w bryle budynku (34,72 m²) oraz prywatnym terenem o powierzchni 332,34 m² do wyłącznego korzystania
Bryła budynku została zaprojektowana w oparciu o śmiałe, proste linie i wyraziste krawędzie, co nadaje całości ponadczasowy, prestiżowy charakter. To architektura, która wyróżnia się elegancją i świadomą minimalizacją formy.
FUNKCJONALNY UKŁAD – PRZEMYŚLANA PRZESTRZEŃ
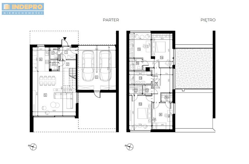
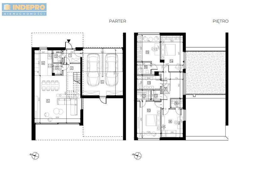
Parter – 60,60 m²
- reprezentacyjny wiatrołap i hol
- toaleta
- kotłownia
- przestronny salon z jadalnią (ponad 40 m²) z wyjściem do ogrodu
- wyraźnie wydzielona kuchnia
- garaż dwustanowiskowy w bryle budynku
Strefa dzienna została zaprojektowana jako otwarta, jasna przestrzeń – idealna zarówno do życia rodzinnego, jak i spotkań towarzyskich.
Piętro – 76,40 m²
- komfortowa sypialnia główna
- dwa ustawne pokoje
- dodatkowy gabinet (idealny do pracy zdalnej)
- dwie łazienki
- garderoby
- pralnia
- funkcjonalna komunikacja
Układ piętra zapewnia pełną prywatność domownikom, a jednocześnie daje dużą elastyczność aranżacyjną
TECHNOLOGIA I STANDARD
Inwestycja została zaprojektowana z myślą o komforcie i efektywności energetycznej.
- Ogrzewanie: nowoczesny system oparty o dwufunkcyjny piec gazowy
- Woda: sieć miejska
- Kanalizacja: miejska
To rozwiązania gwarantujące wygodę, stabilność i bezproblemową eksploatację.
LOKALIZACJA – NATURA I PRESTIŻ
To miejsce, które daje coś więcej niż adres.
W bezpośrednim sąsiedztwie znajduje się:
- Wisła – idealna na spacery, bieganie i rower
- Rezerwat Zakole Wawerskie – unikalna przestrzeń zielona sprzyjająca relaksowi i aktywnemu wypoczynkowi
Po intensywnym dniu możesz wrócić do ciszy, zieleni i przestrzeni. To połączenie miejskiej dostępności z atmosferą willowej enklawy.
DLACZEGO WARTO?
- prestiżowa, kameralna inwestycja
- nowoczesna, wyrazista architektura
- duży prywatny teren
- garaż w bryle budynku
- funkcjonalny układ idealny dla rodziny
- bliskość natury bez rezygnacji z miejskich udogodnień
Jeśli chcesz poznać dokładną lokalizację, standard wykończenia oraz szczegóły techniczne
To jedna z ciekawszych propozycji w tej części Wawra – zarówno pod kątem funkcjonalności, jak i kameralności całego założenia.
Zadzwoń i umów się na prezentację.
Chętnie przekażę więcej szczegółowych informacji dotyczących standardu wykończenia, harmonogramu realizacji oraz ceny.

