
Zainteresowała Cię ta oferta?



Na sprzedaż nowa kawalerka w stanie deweloperskim zlokalizowana w nowoczesnej inwestycji Urcity II na dynamicznie rozwijającym się Ursusie.
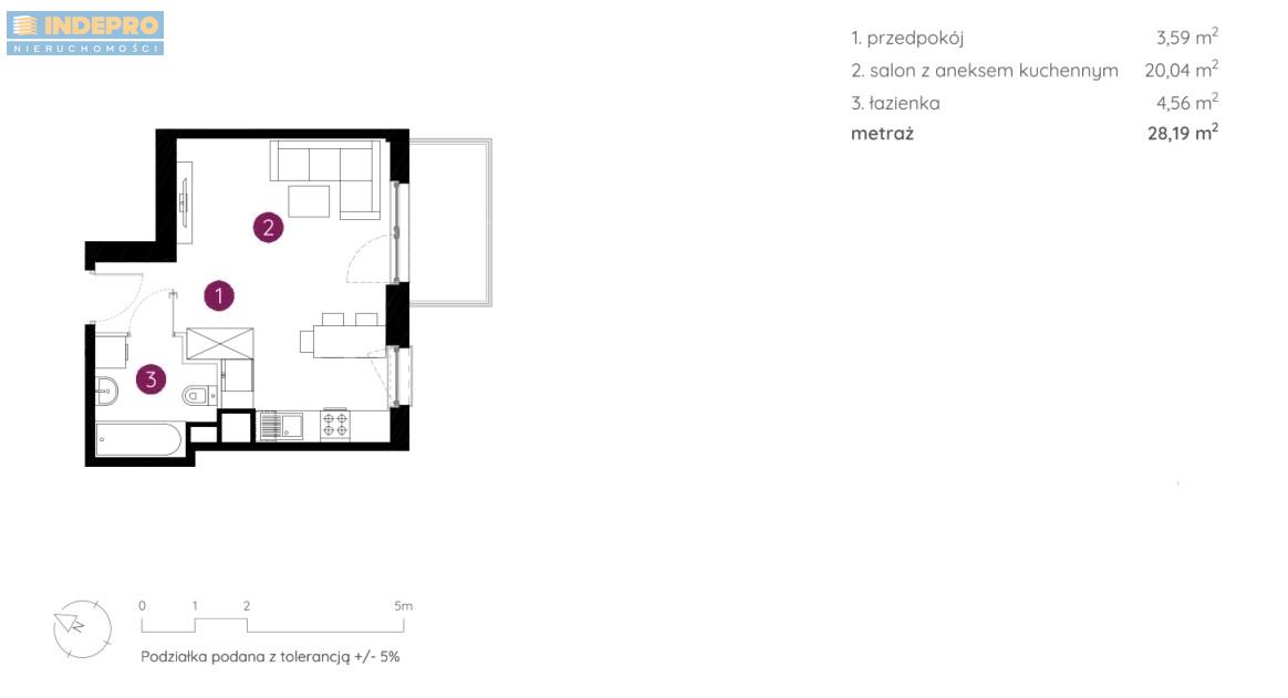
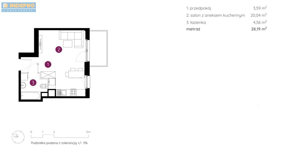
To propozycja idealna zarówno jako pierwsze mieszkanie jak i pewna lokata kapitału pod wynajem. Lokal o powierzchni 28,19 m² znajduje się na 4 pietrze ośmiopiętrowego budynku. Przemyślany układ pozwala na funkcjonalne zaaranżowanie przestrzeni dziennej z aneksem kuchennym części sypialnianej oraz łazienki. Stan deweloperski daje pełną swobodę aranżacyjną i możliwość wykończenia mieszkania zgodnie z własnym stylem lub skorzystania z opcji wykończenia pod klucz.
W ramach inwestycji dostępne są lokale o metrażach od 28 do 60 m² a ceny mieszkań mieszczą się w przedziale od 521 515 do 946 062 zł. Cały projekt obejmuje 107 mieszkań rozmieszczonych w budynku o 8 kondygnacjach. Planowany termin oddania inwestycji to I kwartał 2027 roku
Do mieszkań dostępne są komórki lokatorskie. Miejsce postojowe nie jest obowiązkowe a jego cena rozpoczyna się od 20 000 zł. Inwestycja została zaprojektowana z myślą o wygodzie codziennego życia oraz długoterminowej wartości nieruchomości. Ursus to dzielnica oferująca świetne połączenie komunikacyjne z centrum Warszawy oraz pełną infrastrukturę handlowo usługową. W pobliżu znajdują się sklepy restauracje szkoły tereny zielone oraz szybki dojazd do głównych arterii miasta. Lokalizacja sprzyja zarówno zamieszkaniu jak i stabilnemu wynajmowi.
To atrakcyjna oferta dla singla inwestora lub osób poszukujących nowego mieszkania w rozwijającej się części Warszawy.
Zapraszam do kontaktu w celu uzyskania szczegółów.

