
Zainteresowała Cię ta oferta?



OFERTA DOSTĘPNA TYLKO W INDEPRO NIERUCHOMOŚCI
Wirtualny spacer poniżej — zobacz każdy detal i poczuj przestrzeń bez wychodzenia z domu.
https://pano.cool/p/01KHQ046BEC1V5YWV5RHAQ9CKC
3 pokoje Radzymin- Idealne także pod biznes!
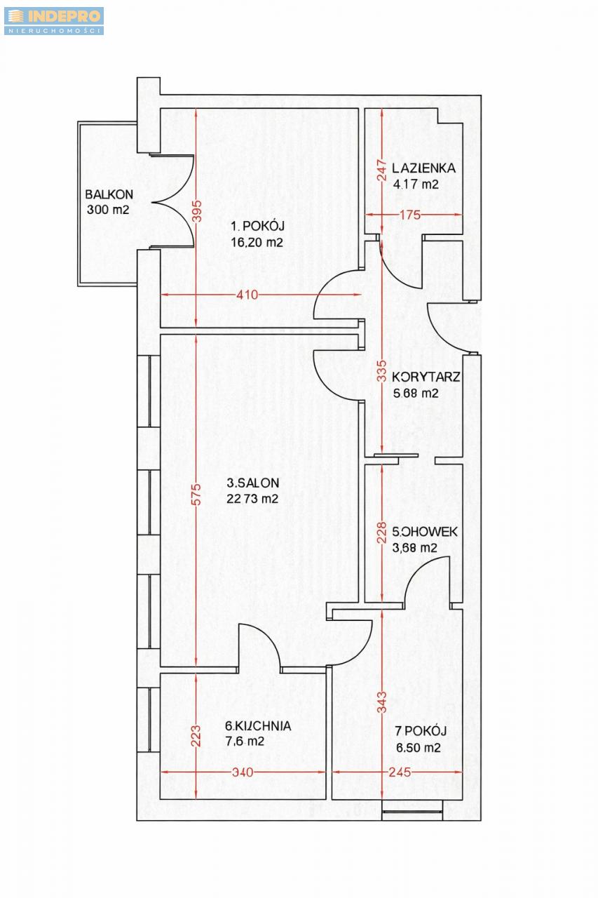
Zapraszam do zapoznania się z ofertą sprzedaży funkcjonalnego mieszkania zlokalizowanego w ścisłym centrum Radzymina. Mieszkanie o powierzchni 69,4 m² znajduje się na drugim piętrze w trzypiętrowym budynku z 2000 roku.
To atrakcyjna propozycja dla osób szukających komfortowej przestrzeni w centrum miasta, z szybkim dojazdem do Warszawy.
Nieruchomość ma uniwersalny charakter- sprawdzi się zarówno dla rodzin, inwestorów pod wynajem, jak i przedsiębiorców poszukujących miejsca na działalność biurową, usługową lub biznesową. Lokalizacja oraz układ mieszkania sprzyjają różnym scenariuszom wykorzystania.
Mieszkanie składa się z trzech pokoi, w tym sypialni z wyjściem na balkon, salonu, gabinetu lub pokoju dziecięcego oraz widnej kuchni z możliwością jej otwarcia na salon i stworzenia przestronnej strefy dziennej lub zmiany układu pomieszczeń. Dodatkowo w mieszkaniu znajduje się łazienka, przedpokój oraz garderoba, której usytuowanie daje możliwość częściowego otwarcia ściany i naturalnego powiększenia strefy dziennej lub jednego z pokoi.
Pomieszczenia i metraż:
Salon 22,73 m²- przestronny, dobrze doświetlony pokój dzienny stanowiący naturalne centrum mieszkania. Duża powierzchnia pozwala na wygodne wydzielenie strefy wypoczynkowej i jadalnianej, a układ pomieszczenia daje swobodę aranżacji zarówno w klasycznym, jak i nowoczesnym stylu.
Pokój 16,20 m²- komfortowa sypialnia z wyjściem na balkon, zapewniająca prywatną przestrzeń do odpoczynku. Ustawny układ pozwala na wygodne zagospodarowanie miejsca pod zabudowę, biurko lub dodatkową strefę relaksu.
Pokój 8,50 m²- funkcjonalny gabinet idealny do pracy zdalnej, prowadzenia działalności lub stworzenia komfortowej przestrzeni biurowej. Pomieszczenie równie dobrze sprawdzi się jako pokój dziecięcy, dodatkowa sypialnia lub pokój gościnny.
Kuchnia 7,58 m²- widna kuchnia o ergonomicznym układzie zapewnia komfort codziennego użytkowania oraz miejsce na strefę jadalnianą. Istnieje możliwość jej otwarcia na salon, co pozwala stworzyć nowoczesną, przestronną strefę dzienną.
Łazienka 4,18 m²- funkcjonalna łazienka z wanną, utrzymana w neutralnej stylistyce, gotowa do użytkowania lub łatwego odświeżenia według własnych preferencji.
Korytarz 5,86 m²- rozkładowy przedpokój zapewniający wygodną komunikację między pomieszczeniami oraz miejsce na pojemną zabudowę do przechowywania.
Garderoba 3,99 m²- praktyczna przestrzeń do przechowywania, której usytuowanie daje możliwość częściowego otwarcia ściany i powiększenia sąsiedniego pomieszczenia lub strefy dziennej.
Najważniejsze atuty nieruchomości:
- funkcjonalny układ i szerokie możliwości aranżacyjne,
- opcja zmiany układu pomieszczeń lub powiększenia przestrzeni dziennej,
- ekspozycja okien na południe i zachód,
- dobre doświetlenie wnętrz,
- klimatyzacja podnosząca komfort codziennego użytkowania,
- balkon oraz dodatkowa przestrzeń do przechowywania,
- zamknięte, kameralne osiedle z miejscami parkingowymi dla mieszkańców,
- budynek o kameralnej skali- 18 lokali, dwie klatki schodowe.
Lokalizacja w centrum Radzymina zapewnia wygodny dostęp do sklepów, usług, szkół, przedszkoli, przychodni oraz urzędów. Bliskość trasy S8 gwarantuje szybki dojazd do Warszawy, co zwiększa komfort codziennego funkcjonowania i atrakcyjność inwestycyjną nieruchomości.
Infrastruktura i komunikacja: w najbliższym otoczeniu znajdują się sklepy, punkty usługowe, placówki edukacyjne, opieka medyczna, restauracje oraz tereny rekreacyjne. Dostępne są linie autobusowe zapewniające wygodne połączenie z Warszawą i okolicznymi miejscowościami, a szybki dojazd trasą S8 umożliwia sprawną komunikację samochodową.
Stan prawny
KW- można posiłkować sie kredytem
czynsz- 420 zaliczka na wodę ( licznik w mieszkaniu), wywóz śmieci, fundusz remontowy, utrzymanie części wspólnych.
gaz- w sezonie grzewczyn 200-400, sezon letni 50-110.
Myślisz o zakupie tej nieruchomości, ale nie wiesz, czy dostaniesz kredyt? Nasz zespół Brokerów Finansowych bezpłatnie sprawdzi Twoje możliwości finansowe i pomoże w uzyskaniu kredytu. Ja natomiast zadbam o to, byś bez problemu przeszedł przez każdy etap zakupu – od pierwszego spotkania po przekazanie kluczy!
Nie zwlekaj, zadzwoń i umów się na prezentację!


