

Zainteresowała Cię ta oferta?





BEZ 2% PCC i BEZ PROWIZJI !!!
Mam przyjemność zaprezentować Państwu mieszkania bezczynszowe zlokalizowane w Radzyminie. Nowe mieszkania będą znajdowały się w budynkach mieszkalnych jednorodzinnych dwulokalowych, w zabudowie szeregowej. Bez względu na to, który z lokali Państwo wybierzecie, będziecie mogli cieszyć się wysokim komfortem życia. Gwarantujemy nowoczesne technologie, przemyślany układ pomieszczeń oraz oryginalną architekturę.
Do mieszkania przynależą 2 miejsca postojowe + ogródek 77m2.
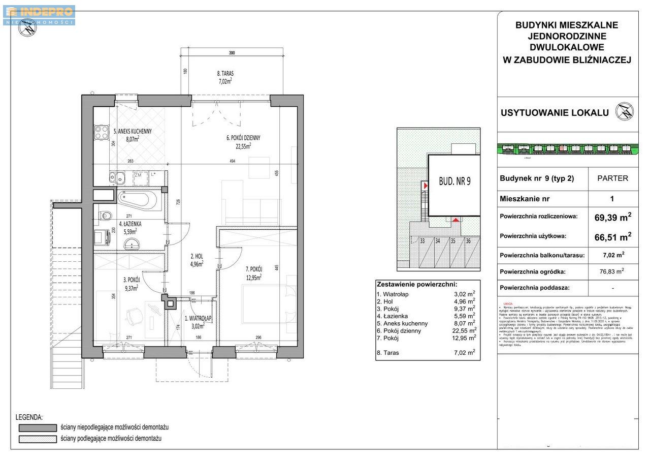
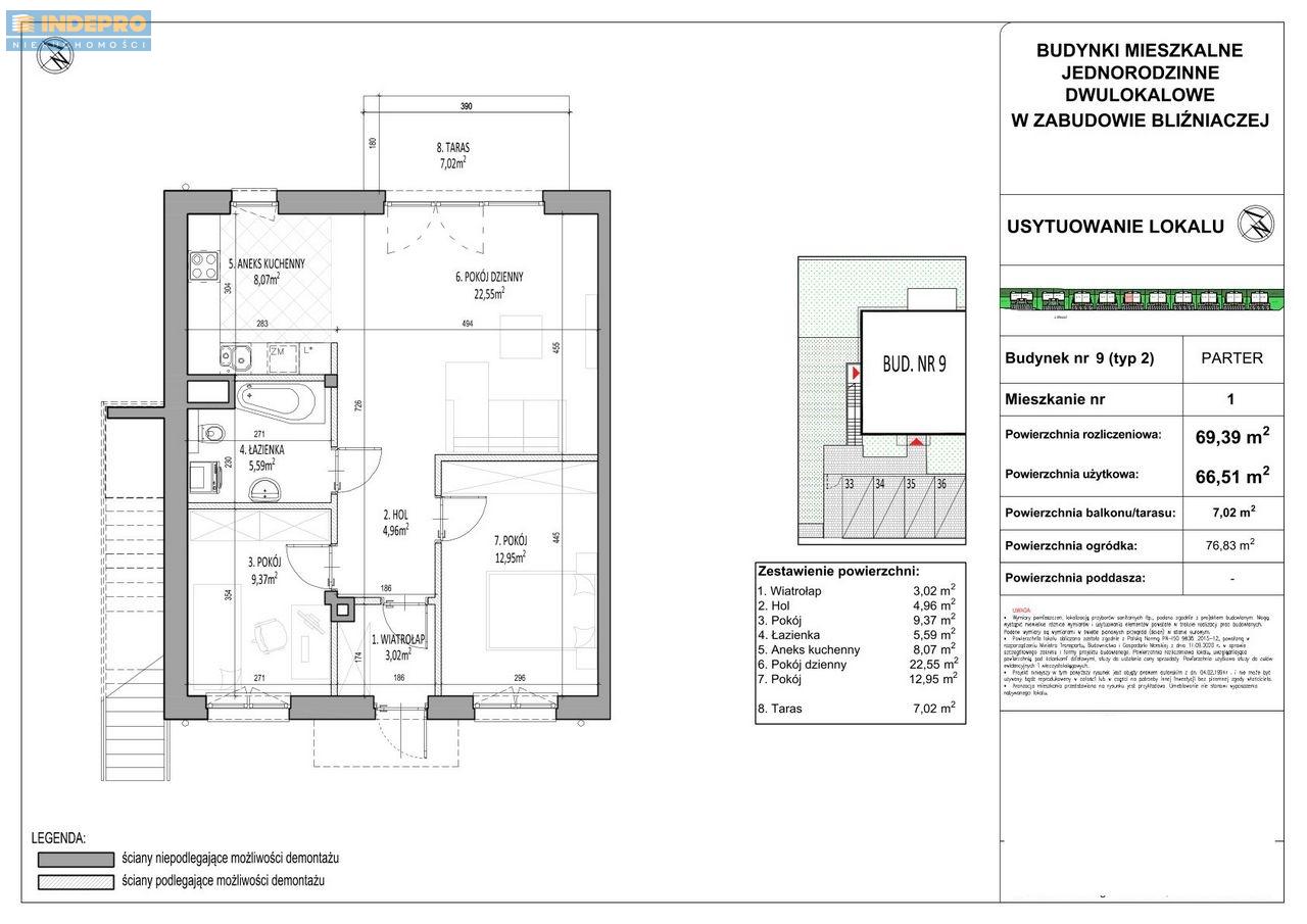
Mieszkanie parterowe ma powierzchnię 69,39m².
Rozkład pomieszczeń:
- salon 22,55m²
- aneks kuchenny 8,07m²
- pokój 9,37m²
- pokój 12,95m²
- łazienka 5,59m²
- korytarz 4,96m²
- wiatrołap 3,02m²
- taras 7,02m²
- ogródek 76,83m²
Dodatkowy obligatoryjny koszt za 2 miejsca parkingowe - 40 000zł.
TERMIN ODDANIA DO UŻYTKOWANIA: czerwiec 2026r.
Okolica:
1. Przedszkole publiczne – w odległości ok. 1,5 km
2. Szkoła Podstawowa – w odległości ok. 1,5 km
3. Liceum Ogólnokształcące – w odległości ok. 1 km
4. Kościół – w odległości ok. 1,5 km
5. Szpital – 1 km
6. Przychodnia – w odległości ok. 1 km
7. Galeria handlowa (Biedronka, Hebe, PEPCO, Martens Sport) – w odległości ok. 1 km
8. Urząd Miasta – w odległości ok. 1,5 km
W ofercie również mieszkania o większym metrażu - zadzwoń !!!
Osiedle jest oddalone od centrum Radzymina o około 500m (5 minut spacerem) oraz 2,5km od wjazdu na trasę S8. W pobliskim Wołominie znajduje się centrum handlowe Galeria Wołomin, gdzie dojadą Państwo w 12 minut.
Serdecznie zapraszam na prezentację w dowolnym dla Państwa terminie.
Na pierwszym miejscu zawsze stawiamy klienta, dlatego z naszą pomocą zakup nieruchomości jest prosty. Współpracujemy z ekspertami ds. kredytów, którzy porównają dla Państwa oferty wszystkich banków. Możecie liczyć na naszą kompleksową, profesjonalną i sprawną obsługę.
Pomoc doradcy kredytowego GRATIS.



