
Zainteresowała Cię ta oferta?



Nowoczesny dom z ogródkiem – 15 minut od Warszawy!
Postaw na komfort życia w funkcjonalnym, nowoczesnym domu położonym w spokojnej, zielonej okolicy, zaledwie kwadrans od granic Warszawy. Inwestycja obejmuje kameralne, dwukondygnacyjne budynki zaprojektowane z myślą o wygodzie i estetyce. To idealne miejsce dla rodzin, par oraz osób poszukujących balansu między życiem w mieście a bliskością natury.
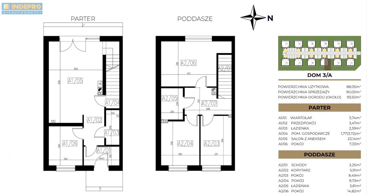
Każdy dom ma powierzchnię 88,5 m² oraz przestronne poddasze do własnej aranżacji, które może pełnić funkcję dodatkowego pokoju, biura lub strefy relaksu. Na parterze znajduje się przestronny salon z aneksem kuchennym, łazienka oraz pokój idealny na gabinet lub sypialnię gościnną. Na piętrze zaprojektowano trzy niezależne sypialnie i drugą łazienkę, co gwarantuje prywatność i funkcjonalny podział przestrzeni.
Każdy dom posiada własny ogródek, który stanie się doskonałym miejscem do odpoczynku i spotkań w gronie bliskich. W cenie nieruchomości znajdują się dwa miejsca postojowe.
Lokalizacja inwestycji zapewnia szybki dojazd do Warszawy trasą szybkiego ruchu, a jednocześnie pozwala cieszyć się ciszą i bliskością przyrody. W otoczeniu znajdują się łąki, lasy i tereny rekreacyjne, a zaledwie kilka minut spaceru dzieli mieszkańców od leśnych ścieżek i placu zabaw w naturalnym otoczeniu.
To idealne miejsce dla osób, które marzą o własnym domu z ogródkiem, ale nie chcą rezygnować z udogodnień życia blisko stolicy.
Parametry nieruchomości:
Cena: 655 000 PLN
Powierzchnia: 88,50 m²
Liczba pokoi: 5
Cena za m²: 7 401,13 PLN
Piętra: 1
Miejsca postojowe: 2 (w cenie)
Planowany termin oddania: III kwartał 2026
Dlaczego warto:
Nowoczesna architektura i wysoki standard wykonania
Funkcjonalny układ pomieszczeń z możliwością adaptacji poddasza
Prywatny ogródek i dwa miejsca postojowe
Spokojna, zielona okolica w pobliżu Warszawy
Doskonała komunikacja z miastem i bliskość natury
Zapraszam na prezentację!

