
Zainteresowała Cię ta oferta?



Atrakcyjny pawilon handlowy 45 m² – Gocław, ul. Rogalskiego
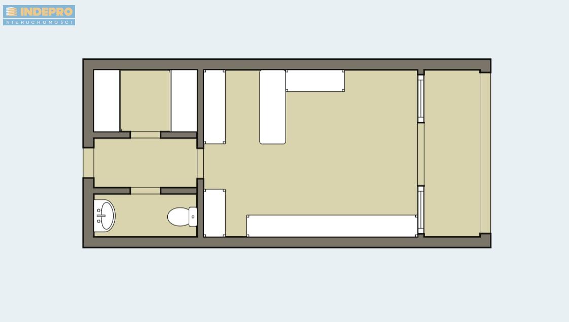
Do wynajęcia funkcjonalny pawilon handlowo-usługowy o powierzchni około 45 m², zlokalizowany na warszawskim Gocławiu przy ulicy Rogalskiego. To doskonałe miejsce na prowadzenie działalności – zarówno handlowej, jak i usługowej – dzięki świetnej lokalizacji w środku osiedla oraz intensywnemu ruchowi okolicznych mieszkańców.
Lokal znajduje się w wolnostojącym pawilonie z bezpośrednim wejściem od ulicy, co zapewnia doskonałą widoczność i łatwy dostęp dla klientów. Jego wyjątkowym atutem jest duży, w pełni otwierany przedsionek, który świetnie sprawdza się jako dodatkowa przestrzeń ekspozycyjna i pozwala na efektowną prezentację oferowanych produktów.
Wnętrze pawilonu zostało przystosowane z myślą o wygodzie przyszłego najemcy. Do dyspozycji pozostaje pomieszczenie chłodnicze z klimatyzacją, idealne do przechowywania towarów wymagających odpowiednich warunków. Komfort użytkowania podnosi również węzeł sanitarny w postaci toalety znajdującej się w lokalu.
Dzięki swojej uniwersalności pawilon doskonale sprawdzi się jako sklep spożywczy, punkt gastronomiczny, piekarnia, cukiernia, lodziarnia czy kwiaciarnia. Lokal jest gotowy do adaptacji pod różne potrzeby i umożliwia rozpoczęcie działalności praktycznie od zaraz.
Dodatkowym atutem jest możliwość atrakcyjnego wyróżnienia się na tle konkurencji – w połączeniu z doskonałą lokalizacją i nowoczesnymi udogodnieniami lokal pozwala stworzyć miejsce, które na długo zapadnie w pamięci klientów.
Miesięczna kwota najmu: 4000 zł w tym czynsz do administracji.
Lokal dostępny od zaraz.
Zadzwoń i umów się na prezentację! Ten lokal ma potencjał, by stać się miejscem, które nie tylko odpowie na potrzeby Twojej działalności, ale i pozwoli jej rozkwitnąć w jednej z najciekawszych lokalizacji Warszawy.


