
Zainteresowała Cię ta oferta?



Na sprzedaż – luksusowy apartament inwestycyjny w prestiżowej inwestycji OVAL SKY, Bliska Wola, Warszawa
Cena: 658 000 PLN
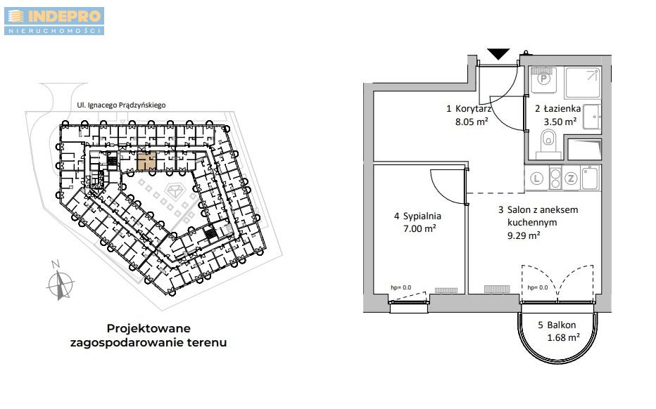
Powierzchnia: 28,09 m²
Piętro: 2
Stan: deweloperski
Wyjątkowa oferta w standardzie premium – apartament w nowoczesnym apartamentowcu OVAL SKY, zlokalizowanym w jednej z najbardziej prestiżowych części Warszawy. To idealny produkt inwestycyjny dla osób szukających połączenia luksusu, nowoczesnej architektury i pełnej bezobsługowości inwestycji.
Lokalizacja – topowa część Bliskiej Woli
Zaledwie 10 minut od Dworca Centralnego i kilka minut spacerem od Dworca Zachodniego. Tuż obok znajduje się centrum EXPO XXI, a w bezpośrednim sąsiedztwie – nowoczesne biurowce, hotele, restauracje i centrum biznesowe przy Rondzie Daszyńskiego. Lokalizacja zapewnia całoroczne obłożenie – zarówno dla klientów biznesowych, jak i turystów.
O inwestycji OVAL SKY – nowy standard prestiżu wśród inwestycji apartamentowych
• 10 kondygnacji w eleganckim apartamentowcu
• 333 luksusowe apartamenty inwestycyjne
• Powierzchnie od 26 do 56 m²
• Stylowe lobby z recepcją i concierge
• Wysokiej klasy restauracja w budynku
• Ponad 200 m² ekskluzywnej przestrzeni coworkingowej
• Kino dla mieszkańców
• Strefa fitness i wypoczynku
• Całkowicie bezobsługowy model inwestycyjny – zarządzanie przez Grano Hotels
Model inwestycyjny premium
• Zakup w pełni wykończonego apartamentu w stanie deweloperskim
• Przekazanie w zarządzanie renomowanemu operatorowi z grupy Grano Hotels
• Możliwy zysk do 75% w 9 lat (średnia stopa zwrotu: 8,33% rocznie)*
• Idealne rozwiązanie dla inwestorów ceniących spokój, bezpieczeństwo i wysoką jakość
Dlaczego OVAL SKY
To więcej niż nieruchomość – to inwestycja w luksusowy styl życia i prestiżową lokalizację. Warszawska Wola, z rozwiniętą infrastrukturą komunikacyjną i bliskością kluczowych punktów biznesowych, to jedno z najlepszych miejsc w Polsce dla inwestorów premium.
Skontaktuj się z doradcą inwestycji premium i poznaj szczegóły oferty.
Podana stopa zwrotu oparta jest na symulacjach dla lokalu w stanie deweloperskim, przy założeniu współpracy z operatorem. Szczegóły dostępne na życzenie.

