
Zainteresowała Cię ta oferta?



bez PCC
Zostalo kilka ostatnich lokali
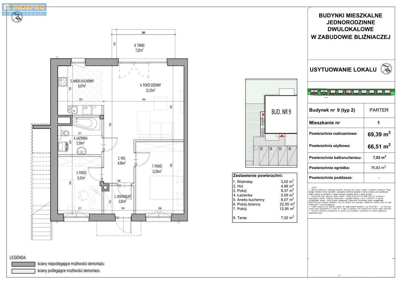
Osiedle to nowa inwestycja zlokalizowana w Radzyminie, Nowe mieszkania będą znajdowały się w 16 budynkach mieszkalnych jednorodzinnych dwulokalowych, w zabudowie szeregowej, W ofercie dostępne są mieszkania o metrażach od 69 do120 m2, Przedsięwzięcie zostanie wykonane wraz z niezbędną infrastrukturą, zatem kupując nowe mieszkanie możesz mieć pewność, że Twoim jedynym wyzwaniem będzie urządzenie go. Resztą zajmie się deweloper, Bez względu na to, który z naszych lokali wybierzesz, będziesz mógł cieszyć się wysokim komfortem życia, Gwarantujemy nowoczesne technologie, przemyślany układ pomieszczeń oraz oryginalną architekturę.
Budynki będą posiadały dwie kondygnacje nadziemne i strych. Do każdego lokalu mieszkalnego przynależy jedno miejsce parkingowe naziemne oraz ogródek. Budynki zostaną wyposażone w instalację elektryczną, gazową, wodociągową, kanalizacyjną, telefoniczną, ewentualnie domofonową oraz teletechniczną wraz z niezbędną infrastrukturą, drogami wewnętrznymi, ciągami pieszymi, ogrodzeniem i zielenią
Termin oddania 2026-09-30
W najbliższym otoczeniu Osiedla znajdują się:
Przychodnia
Szpital
Apteka
Przedszkole publiczne
Szkoła podstawowa
Liceum ogólnokształcące
Galeria handlowa (Biedronka, Hebe, CCC, PEPCO, Martens Sport)
Lokalne targowisko
Osiedle jest oddalone od centrum Radzymina o około 500 m (5 minut spacerem) oraz 2,5 km od wjazdu na trasę S8. W pobliskim Wołominie znajduje się centrum handlowe Galeria Wołomin, gdzie dojadą Państwo w 12 minut.
Dodatkowe informacje: 40.000zł 2 miejsca postojowe.
U mnie bezpłatnie sprawdzisz zdolność kredytową i poznasz atrakcyjne warunki kredytowania ze wszystkich banków!
Zapraszam na prezentację!


