
Zainteresowała Cię ta oferta?



Nowoczesne wille miejskie na pograniczu Ursynowa i Mysiadła – elegancja, komfort i natura w jednym
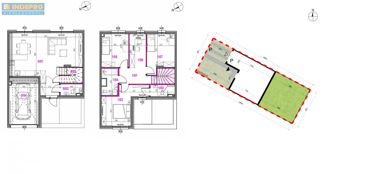
Zamieszkaj w nowoczesnej willi miejskiej, która łączy bliskość natury z wygodą życia w pobliżu centrum Warszawy. Inwestycja obejmuje 29 eleganckich willi w zabudowie szeregowej, zaprojektowanych z myślą o komforcie, przestrzeni i prywatności.
Każdy dom wyróżnia się wysokimi pomieszczeniami (2,95 m), dużymi przeszkleniami oraz starannie zaprojektowanym układem wnętrz, który pozwala na funkcjonalną aranżację przestrzeni. Do każdego domu przynależy taras oraz prywatny ogród, idealny do relaksu i spędzania czasu z bliskimi.
Nowoczesne technologie zastosowane w inwestycji zapewniają nie tylko komfort, ale i realne oszczędności w codziennym użytkowaniu. Standardem są instalacje pod panele fotowoltaiczne, ładowarki do samochodów elektrycznych, system rekuperacji oraz ogrzewanie podłogowe.
Dzięki wyjątkowej lokalizacji – na pograniczu Ursynowa i Mysiadła – mieszkańcy mogą cieszyć się spokojem i zielenią, jednocześnie mając doskonały dojazd do centrum Warszawy. W pobliżu znajdują się sklepy, szkoły, przedszkola, restauracje oraz tereny rekreacyjne. W cenie domu miejsce postojowe.
Parametry lokalu:
Cena: 1 420 000 PLN
Powierzchnia: 130,84 m²
Cena za m²: 11 561,63 PLN
Liczba pokoi: 5
Piętra: 2
Zapraszam na prezentacje !

