
Zainteresowała Cię ta oferta?



Na sprzedaż – nowoczesne 2-pokojowe mieszkanie z ogródkiem na warszawskiej Woli
Cena: 990 000 PLN
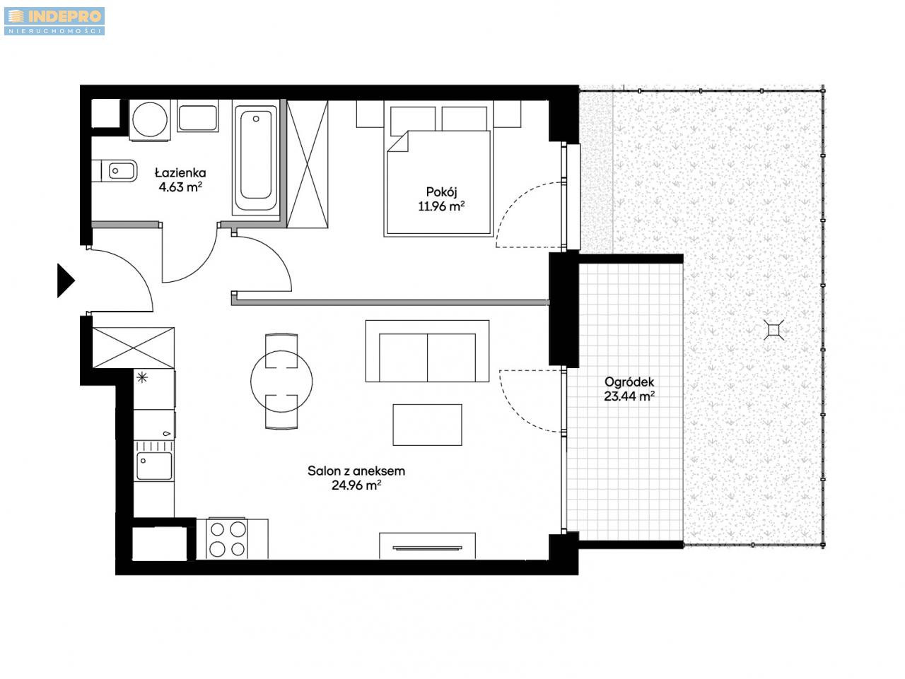
Powierzchnia: 41,55 m²
Liczba pokoi: 2
Parter z prywatnym ogródkiem
Garaż – możliwość zakupu
Boks rowerowy – możliwość zakupu
Komórka lokatorska – możliwość zakupu
Stan: deweloperski
Wyjątkowa oferta w jednej z najbardziej pożądanych lokalizacji Warszawy. Przestronne 2-pokojowe mieszkanie z własnym ogródkiem to idealny wybór dla osób szukających wygody, funkcjonalności i nowoczesnego stylu życia w sercu miasta.
Położone na parterze nowoczesnego budynku, z dostępem do zielonej przestrzeni, świetnie sprawdzi się zarówno dla singla, pary, jak i inwestora poszukującego atrakcyjnej nieruchomości pod wynajem.
Dodatkowe możliwości zakupu miejsca w garażu, komórki lokatorskiej i boksu rowerowego dają pełen komfort codziennego użytkowania.
Nowy etap inwestycji NU – nowoczesne mieszkania na warszawskiej Woli
Drugi etap prestiżowej inwestycji NU to propozycja dla osób poszukujących komfortowego mieszkania w doskonałej lokalizacji, z nowoczesną architekturą i wysoką jakością wykonania.
O inwestycji
W ramach inwestycji NU2 powstaje 136 mieszkań o powierzchniach od 28 do 96 m². Do każdego lokalu przynależy balkon, loggia, taras lub ogródek. Prezentowane mieszkanie znajduje się na parterze i posiada własny ogródek – idealne miejsce do wypoczynku lub stworzenia zielonej strefy relaksu.
Inwestycja wyróżnia się nowoczesną formą, przemyślanym układem przestrzennym i starannie dobranymi materiałami wykończeniowymi, m.in. drewnianymi oknami z filtrami antysmogowymi oraz szklanymi balustradami.
Dostępne są również mieszkania wykończone pod klucz – do wyboru w trzech różnych stylach aranżacyjnych.
Lokalizacja – topowa część warszawskiej Woli
NU2 położona jest przy ul. Kolejowej – w jednej z najdynamiczniej rozwijających się i najlepiej skomunikowanych dzielnic stolicy. Wola to synonim miejskiego stylu życia, z pełną infrastrukturą, szybkim dostępem do centrum oraz licznymi punktami usługowymi, kawiarniami i sklepami tuż za rogiem.
Udogodnienia dla mieszkańców
• System smart home w standardzie – umożliwia kontrolę zużycia energii i wody
• Energooszczędne rozwiązania, w tym panele fotowoltaiczne i zbiornik retencyjny
• Nawiewniki antysmogowe zapewniające jakość powietrza wewnątrz mieszkań
• Dodatkowe przestrzenie do przechowywania: komórki lokatorskie, boksy, wózkownia
• Miejsca postojowe w garażu podziemnym, w tym z ładowarkami do aut elektrycznych
• Możliwość montażu klimatyzacji w mieszkaniach na ostatnich piętrach
• Stojaki rowerowe na terenie osiedla oraz uchwyty rowerowe przy miejscach postojowych
• Starannie zaprojektowana, różnorodna zieleń na terenie inwestycji
NU2 to miejsce, które łączy wysoką jakość życia z miejską wygodą i nowoczesnymi technologiami.
Zadzwoń i umów się na prezentację – to mieszkanie to realna wartość i świetna lokalizacja.


