
Zainteresowała Cię ta oferta?



Kupujący nie płaci 2% PCC
Przedmiotem oferty jest dom w zabudowie bliźniaczej w Arciechowie na nowo budowanym osiedlu gmina Radzymin.
Usytuowany wokół pięknej przyrody w z dala od miejskiego zgiełku w sąsiedztwie Zalewu Zegrzyńskiego z jednoczesnym szybkim i sprawnym dojazdem do Centrum Warszawy.
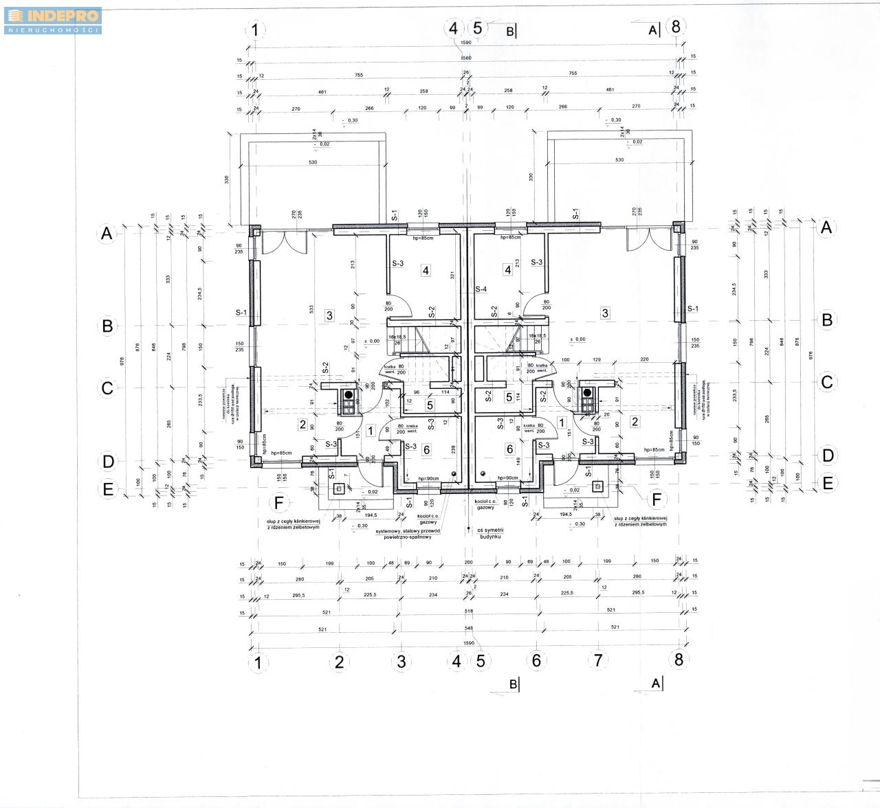
Dom dwukondygnacyjny o powierzchni 102m²:
Parter:
✔️wiatrołap 4,80m²
✔️kuchnia 7,30m²
✔️salon 25,00m²
✔️pokój 8,00m²
✔️łazienka 3,40m²
✔️kotłownia 5,00m²
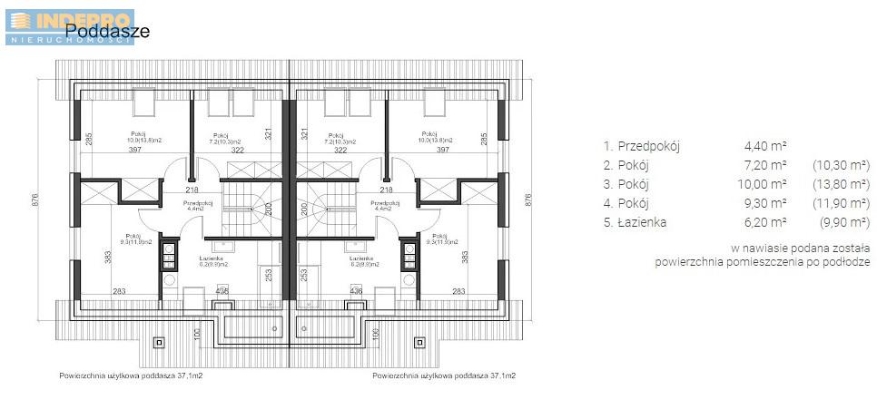
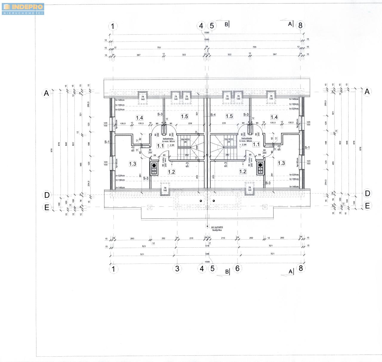
Piętro:
✔️przedpokój 4,40m²
✔️sypialnia 7,20m² (10,30m²)
✔️sypialnia 10,00m² (13,80m²)
✔️sypialnia 9,30m² (11,90m²)
✔️łazienka 6,20m² ( 9,90m²)
(w nawiasie została podana powierzchnia pomieszczenia po podłodze)
Na parterze w pokóju dziennym poprowadzono instalację pod kominek z płaszczem wodnym. W kotłowni znajduje się pompa ciepła z oprzyrządowaniem.
Dom prosty w konstrukcji, ekonomiczny o zwartej bryle na działce o powierzchni 423m².
Nieruchomość będzie ogrodzona, posiadać będzie własną bramę wjazdową oraz furtkę.
Polecamy jako doskonałą alternatywę dla rodziny, która zamiast mieszkać w bloku pragnie posiadać swój własny dom z dużym ogrodem za niewygórowaną cenę.
W okolicy:
- przystanek autobusowy 950m, dwie linie
- linia ZTM 705 do metro Marymont
- szkoła , przedszkole
- centrum Radzymina 8km
- centrum Warszawy 30km
- ekspresowa linia R9 do Metra Kondratowicza z Radzymina.
Inwestycja w trakcie budowy planowany odbiór sierpień 2026.
Kupujący nie płaci 2% PCC.
Nieruchomość w stanie deweloperskim obejmuje:
1. ściany zewnętrzne suporex 24 cm
2. pokrycie dachu blachodachówka modułowa
3. poddasze ocieplone wełna mineralna
4. okna trzyszybowe o współczynniku 0,75
5. ścianki działowe suporex 12 cm
6. drzwi wejściowe o grubości 72mm
7. elewacja Styropian 20cm, tynk silikonowy
8. instalacja elektryczna
9. instalacja hydrauliczna
10. tynki wewnętrzne gipsowe
11. posadzka właściwa izolowana
12. przyłącza: własna studnia z systemem uzdatniania wody, prąd, szambo 10m3,
13. instalacja do kominka
14. pompa ciepła z oprzyrządowaniem
15. ogrzewanie podłogowe
16. instalacja alarmowa.
Serdecznie zapraszam na prezentację w dowolnym dla Państwa terminie.
Na pierwszym miejscu zawsze stawiamy klienta, dlatego z naszą pomocą zakup nieruchomości jest prosty. Współpracujemy z ekspertami ds. kredytów, którzy porównają dla Państwa oferty wszystkich banków. Możecie liczyć na naszą kompleksową, profesjonalną i sprawną obsługę. Oferujemy pomoc doradcy kredytowego.


