
Zainteresowała Cię ta oferta?



Nowoczesny dom parterowy z garażem | 143,2 m² | działka 1027 m² | gotowy do zamieszkania.
Na sprzedaż nowoczesny dom jednorodzinny wolnostojący wybudowany w 2023 roku, położony na zagospodarowanej działce o powierzchni 1027 m².
Budynek wykonany został w technologii tradycyjnej murowanej z wysokiej jakości materiałów i zaprojektowany z myślą o wygodzie codziennego życia.
Dom jest parterowy, bez podpiwniczenia, z funkcjonalnym układem pomieszczeń i garażem w bryle budynku.
Na terenie działki znajduje się również dodatkowy garaż dwustanowiskowy.
Nieruchomość nie wymaga żadnych nakładów finansowych – jest wykończona i gotowa do zamieszkania.
Parametry techniczne budynku.
powierzchnia użytkowa: 143,2 m²
powierzchnia zabudowy: 177 m²
powierzchnia działki: 1027 m²
wysokość kondygnacji: 2,95 m
technologia budowy: murowana – gazobeton ściany zewnętrzne: 25 cm + ocieplenie styropian 25 cm
ściany wewnętrzne nośne: 25 cm
ściany działowe: 12 cm strop:
płyta żelbetowa 15 cm
dach: konstrukcja drewniana, pokrycie dachówką cementową
poddasze: nieużytkowe
Media i instalacje
kanalizacja miejska, gaz ziemny ogrzewanie: piec gazowy dwufunkcyjny woda miejska,energia elektryczna.
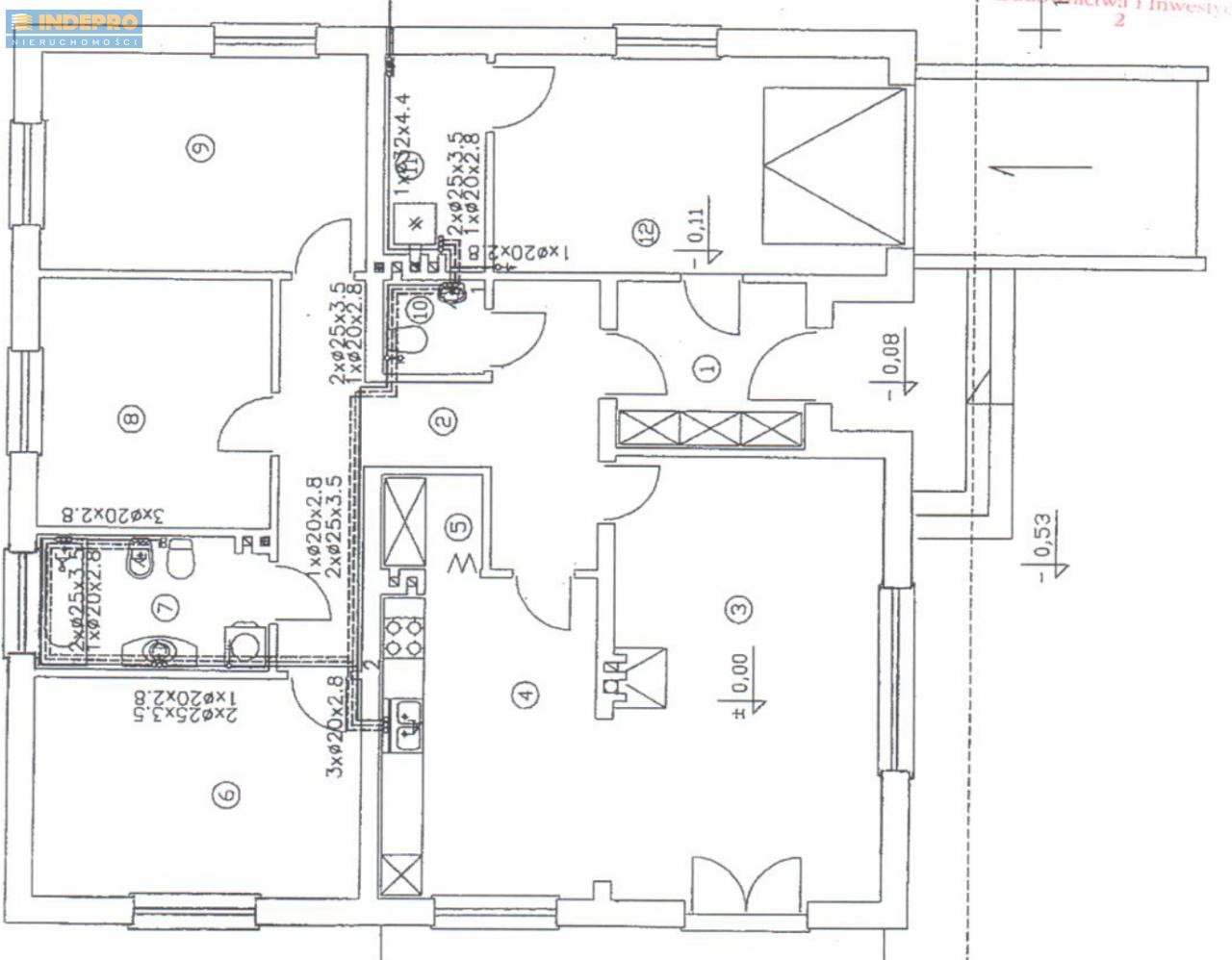
Układ pomieszczeń
Dom zaprojektowany jest w bardzo funkcjonalnym układzie dzienno-prywatnym.
Strefa dzienna wiatrołap – 6,9 m², przedpokój – 16,4 m², przestronny salon – 26,5 m², kuchnia – 15,4 m², spiżarnia – 2,1 m²
Strefa prywatna pokój – 15,6 m², pokój – 12,6 m², pokój – 15,4 m²
Pomieszczenia dodatkowe łazienka – 6,7 m² WC – 2,1 m² kotłownia – 4,5 m² garaż w bryle budynku – 19 m²
Standard wykończenia
Dom został wykończony z materiałów wysokiej jakości: w pokojach wysokiej klasy panele podłogowe, ściany wykończone gładziami, rolety zewnętrzne elektryczne nowoczesne, instalacje bardzo dobry stan techniczny – dom praktycznie jak nowy.
Działka Działka o powierzchni 1027 m² jest w pełni zagospodarowana: teren ogrodzony liczne nasadzenia drzew iglastych - tuje, dodatkowy garaż dwustanowiskowy, na działce dużo przestrzeni rekreacyjnej.
Najważniejsze atuty nieruchomości dom z 2023 roku parterowy i bardzo funkcjonalny układ wysoka jakość wykonania gotowy do zamieszkania garaż w bryle + dodatkowy garaż na działce duża, zagospodarowana działka
