
Zainteresowała Cię ta oferta?



Nowowoczesne domy z ogrodami – komfort, styl i spokój blisko Warszawy
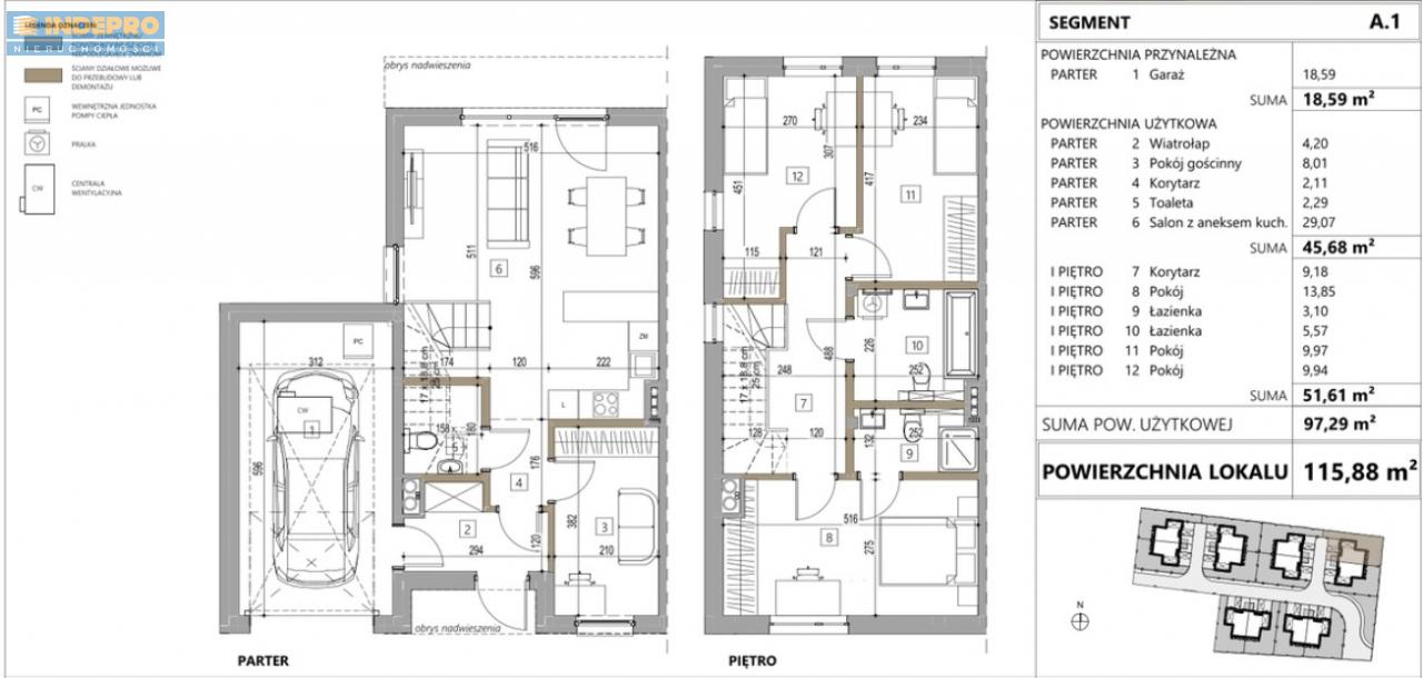
Nowoczesna inwestycja obejmuje 34 stylowe budynki w zabudowie dwulokalowej, zaprojektowane z myślą o funkcjonalności, estetyce i codziennym komforcie. W ramach pierwszego etapu budowy, rozpoczętego w marcu 2024 roku, powstanie 12 przestronnych, dwupoziomowych domów o powierzchni ok. 116 m².
Każdy dom został zaprojektowany z dbałością o każdy detal – od przemyślanego układu pomieszczeń po starannie dobrane materiały wykończeniowe. W standardzie znajduje się garaż, dodatkowe miejsce postojowe oraz prywatny ogródek, który stanie się idealnym miejscem na odpoczynek po pracy, rodzinne spotkania czy letnie poranki przy kawie.
Inwestycja łączy nowoczesną architekturę z praktycznymi rozwiązaniami, które odpowiadają potrzebom współczesnych rodzin. Wnętrza są jasne, przestronne i łatwe do aranżacji, co pozwala dopasować przestrzeń do indywidualnego stylu życia mieszkańców.
Lokalizacja osiedla gwarantuje spokój i bezpieczeństwo, a jednocześnie dogodny dostęp do Warszawy. W okolicy znajdują się szkoły, przedszkola, sklepy oraz tereny zielone – wszystko, co potrzebne do wygodnego życia na co dzień.
Parametry lokalu:
Cena: 1 190 000 PLN
Powierzchnia: 97,29 m²
Cena za m²: 12 231,47 PLN
Liczba pokoi: 5
Piętra: 1
Planowany termin oddania: IV kwartał 2026
Dlaczego warto:Kameralne osiedle 34 domów w zabudowie dwulokalowejGaraż i miejsce postojowe w ceniePrywatny ogródek przy każdym domuNowoczesna architektura i wysoki standard wykonaniaBliskość Warszawy i pełna infrastruktura w zasięgu kilku minutIdealne miejsce dla rodzin ceniących komfort i spokój
Zapraszam na prezentacje

