

Zainteresowała Cię ta oferta?





Zapraszam do zakupu mieszkania bezczynszowego w kameralnej inwestycji w zielonej części podwarszwskich Marek na Strudze tuż przy Puszczy Słupeckiej. Na zamkniętym osiedlu znajduje się tylko 5 lokali, do każdego przynależny ogródek oraz dwa miejsca postojowe.
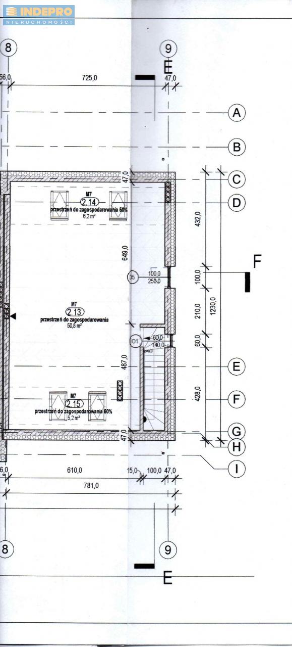
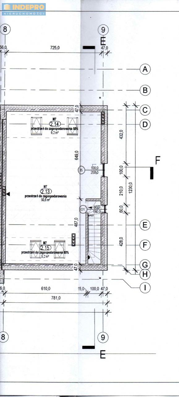
Narożne mieszkanie 5 pokojowe na piętrze - 130,5m² w cenie 848 000zł + ogródek - 45m².
Zakup bez 2% PCC. Bez prowizji.
Rozkład pomieszczeń na piętrze:
- salon - 23,1m²
- kuchnia - 6,9m²
- sypialnia - 11,4m²
- sypialnia - 10,7m²
- łazienka - 5,4m²
- korytarz - 10,8m²
- bardzo duży balkon, na który można wyjść z obu sypilani jako korytarza
- przy wejściu przedsionek na szafę , rowery, wózek itp.
Poddasze:
Przestrzeń do własnej aranżacji 62,2m² podłączenia do mediów tak, aby mogło funkcjonować jako osobne mieszkanie (swobodnie dwa, a nawet trzy pokoje + kuchnia).
Cena: 848 000 zł
Planowany termin oddania styczeń 2026r.
STANDARD WYKOŃCZENIA - DEWELOPERSKI:
Budynek wybudowano z cegły ceramicznej Porotherm szlifowany Profi 25 na klej, stropy żelbetowe, ocieplenie styropian 20 cm, elewacje zewnętrzne - tynk silikatowy, dach pokryty blachodachówką, stolarka okienna PCV trzy szybowa - duże przeszklenia, widne pokoje, stolarka drzwiowa grafitowa o podwyższonej odporności na włamania, tynki wewnętrzne gipsowe, wylewka betonowa.
INSTALACJE WEWNĘTRZNE - - instalacja wodno-kanalizacyjna - instalacja centralnego ogrzewania z piecem kondensacyjnym dwu-funkcyjnym z zamkniętą komorą spalania i kaloryferami, instalacja gazowa, instalacja (elektryczna, TV, sieciowa, alarmowa, domofon) okablowanie, światłowód.
DZIAŁKA I INFRASTRUKTURA - indywidualne wszystkie przyłącza: gazowe, wodne, kanalizacyjne, elektryczne opłaty wyłącznie za własne mieszkanie bez obciążeń administracyjnych – parkingi, chodniki i podjazd wyłożone kostką brukową. Ogródki wydzielone i ogrodzone panelami 3D dla każdego z mieszkań.
LOKALIZACJA:
Cicha i spokojna okolica zapewnia dobrą komunikację ze Stolicą, doskonały dostęp do trasy S8, do metra Trocka 30 minut.
W okolicy szkoły, przedszkola, żłobki, kawiarnia, restauracja, apteka, trzy sklepy spożywcze w tym Żabka.
W odległości 1,5 km galeria Prima Marki, gdzie znajduje się m. in. Biedronka i Rossmann.
W okolicy znajduje się plac zabaw oraz liczne ścieżki rowerowe.
Dojście do lasu zajmuje... 2 minuty wolnym krokiem :)
Zapewniamy bezpłatną pomoc w uzyskaniu korzystnego kredytu.



