
Zainteresowała Cię ta oferta?



Nowoczesna willa miejska w otoczeniu natury – Wisła i Rezerwat Zakole Wawerskie na wyciągnięcie ręki
Są nieruchomości, które spełniają oczekiwania. I są takie, które je wyprzedzają.
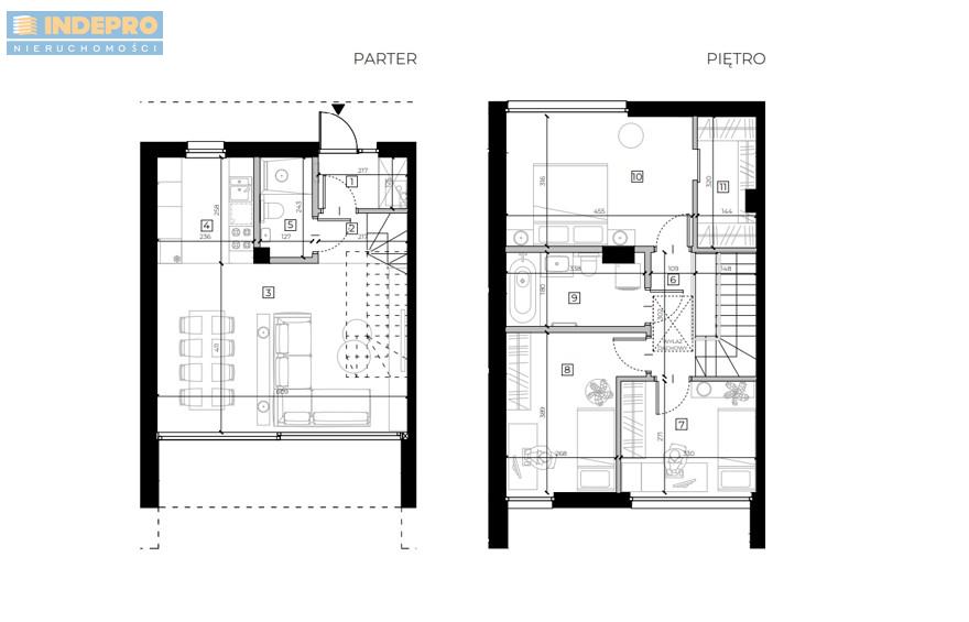
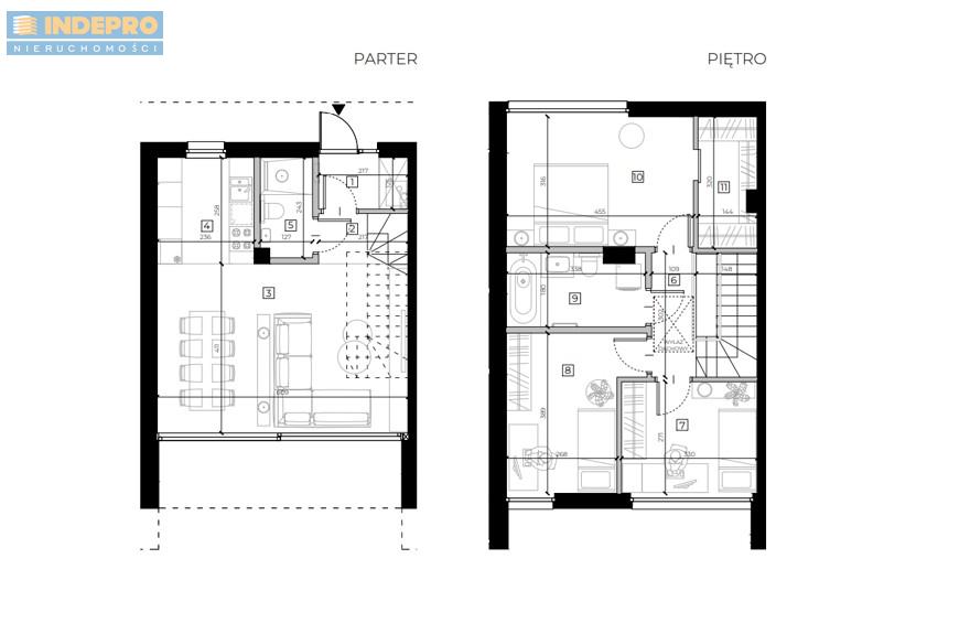
Prezentuję Państwu nowoczesny dom w zabudowie bliźniaczej o powierzchni wewnętrznej 96,51 m², z prywatnym ogrodem, dwoma miejscami postojowymi oraz dopracowanym układem funkcjonalnym, zaprojektowanym z myślą o komforcie codziennego życia.
Powierzchnia terenu wynosi 132,43 m2 (do wyłącznego korzystania), w tym obrys budynku, ogród i dwa miejsca postojowe.
Bryła budynku oparta została na śmiałych, prostych liniach i wyraźnych krawędziach, tworząc elegancką, minimalistyczną architekturę o ponadczasowym charakterze. To propozycja dla osób ceniących estetykę, przestrzeń i prestiż.
Przemyślany układ pomieszczeń – funkcjonalność i nowoczesny:
Parter – 39,50 m²
- wiatrołap (2,65 m²)
- hol (2,71 m²)
- toaleta (3,04 m²)
- kuchnia (6,08 m²)
- przestronny salon z jadalnią (25,02 m²)
Centralnym punktem domu jest jasna strefa dzienna z dużymi przeszkleniami i wyjściem do ogrodu. Salon o powierzchni ponad 25 m² daje pełną swobodę aranżacji – od rodzinnej przestrzeni wypoczynkowej po elegancką strefę spotkań.
Piętro – 48,15 m²
- komunikacja (3,28 m²)
- pokój 1 (8,94 m²)
- pokój 2 (11,23 m²)
- łazienka (5,88 m²)
- sypialnia (14,36 m²)
- garderoba (4,46 m²)
Na piętrze znajduje się komfortowa strefa prywatna – trzy sypialnie, w tym główna z garderobą, oraz wygodna łazienka. Układ zapewnia funkcjonalność zarówno dla rodziny z dziećmi, jak i dla osób pracujących z domu.
To realna przestrzeń do odpoczynku, grillowania, zabawy z dziećmi czy stworzenia zielonej strefy relaksu.
Technologia i media
Dom wyposażony jest w:
- ogrzewanie gazowe (indywidualny piec dwufunkcyjny)
- ogrzewanie podłogowe w strefie dziennej i łazienkach
- wodę z sieci miejskiej
- kanalizację miejską
Nowoczesne rozwiązania techniczne gwarantują komfort, energooszczędność oraz niskie koszty eksploatacji.
Lokalizacja – natura i miasto w idealnej równowadze
Nieruchomość położona jest w zielonej części Warszawy, w bezpośrednim sąsiedztwie Wisły oraz Rezerwatu Zakole Wawerskie.
To miejsce, które umożliwia codzienny relaks, spacery, bieganie, jazdę na rowerze czy aktywny wypoczynek po intensywnym dniu pracy – bez rezygnowania z szybkiego dojazdu do centrum miasta.
Osiedle ma kameralny charakter i tworzy spójną, elegancką przestrzeń o wysokim standardzie urbanistycznym.
Dla kogo?
- dla rodzin szukających nowoczesnego domu w zielonej części miasta
- dla osób ceniących nowoczesną architekturę
- dla klientów, którzy chcą połączyć prywatność z wygodą miejskiej infrastruktury

